Trifamiliare in vendita

Pollena Trocchia, Via leopardi
€ 750.000
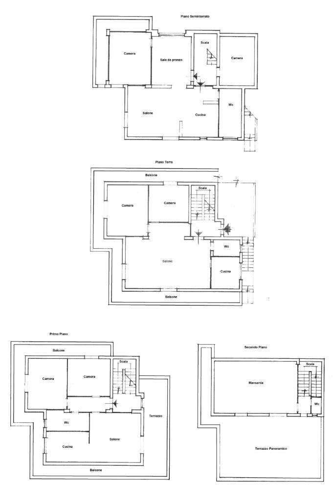
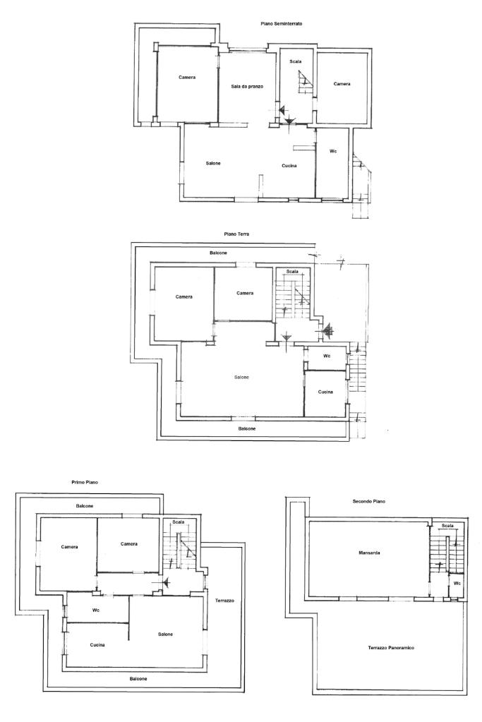
12 locali 12 locali
365 Mq 365 Mq
4 bagni 4 bagni

Trifamiliare in vendita

Pollena Trocchia, Via leopardi

Descrizione annuncio

In zona residenziale, località 'R. Micillo', è disponibile per la vendita una villa trifamiliare completamente indipendente con area esterna circostante di esclusiva proprietà, ideale per chi cerca ampi spazi abitativi e giardino. Costruita nel 1988, questa proprietà si sviluppa su più livelli, offrendo una distribuzione funzionale degli ambienti. Con un totale di 12 locali e 4 bagni, l'immobile si presta a diverse soluzioni abitative, permettendo di personalizzare gli spazi secondo le proprie esigenze. La categoria A/7 garantisce comfort e praticità, rendendo questa trifamiliare una scelta adatta per famiglie numerose o per chi desidera condividere l'abitazione con più nuclei familiari. La posizione, nel rinomato 'R. Micillo', offre un contesto tranquillo, pur rimanendo ben collegata ai principali servizi e vie di comunicazione. Questa proprietà rappresenta un'opportunità interessante per chi desidera investire in una soluzione abitativa versatile, spaziosa e indipendente.

Per appuntamenti dal lunedì al sabato, orario d'ufficio, contattare l'agenzia ai seguenti recapiti: 0815313040 ufficio - 3533106971 WhatsApp ed un nostro incaricato sarà lieto di accompagnarvi nella visione dell'immobile;

Vi ricordiamo inoltre che presso la nostra agenzia è possibile fissare appuntamenti per consulenze di mutuo 'gratuite' ed ottenere anche preventivi notarili personalizzati;

Seguiteci anche sui nostri canali social: Facebook 'Agenzia Tecnocasa Pollena' - Instagram @tecnocasapollena e YouTube Tecnocasa Pollena per essere sempre aggiornati sulle nostre proposte immobiliari.

Mostra tutto

Nelle vicinanze

Trasporto pubblico Trasporto pubblico
Pollena Trocchia
Pollena Trocchia
1,1 Km
Guindazzi
Guindazzi
1,3 Km
Belvedere
Belvedere
1,3 Km
Riccardi - Piazza della Libertà
Riccardi - Piazza della Libertà
2,2 Km
Ricariche auto elettriche Ricariche auto elettriche
Cercola Europa | EnelX
2,2 Km
Cercola Gandhi | EnelX
2,6 Km
Scuole Scuole
Scuole
1,5 Km
Liceo P. G. Rocco
2,1 Km
Ospedali Ospedali
Presidio Sanitario Raffaele Apicella
740 m
Supermercati Supermercati
Despar
2,4 Km
Conad Superstore
2,5 Km
Conad City
2,6 Km
Mobilificio Fusco
2,9 Km
Negozi Negozi
One More Abbigliamento
1,4 Km
Bar Bar
Otto&Angel cafè
2,6 Km
Ristoranti Ristoranti
Pizzeria Funiculi
1,1 Km
Ristorante Capriccio
1,8 Km
Vesum
2,5 Km
Mostra tutto

Caratteristiche

Rif.:
61179948
Piano:
4 di 4 (Piano su più livelli)
Posti auto:
4
Balconi:
2
Terrazzi:
2
Camere da letto:
8
Mostra tutto
Prezzo Prezzo
€ 750.000
Rata mutuo Rata mutuo
€ 3.560 / mese
Proponi il tuo prezzoProponi il tuo prezzo
Immobile valutato con T·Valuta

Classe Energetica

G
G
G
G
G
G
G
G
G
EP globale non rinnovabile:
256.00 kW h/m² anno
EP globale rinnovabile:
115.00 kW h/m² anno
EP invernale del fabbricato:
EP estiva del fabbricato:
Anno di costruzione:
1988
Riscaldamento:
Autonomo
Tipo impianto:
A radiatori
Tipo alimentazione:
Metano

Ti interessa visionare l'immobile?

Fissa un appuntamento  Fissa un appuntamento

Richiedi informazioni

Clicca su Leggi per aprire l'informativa
* Questi campi sono obbligatori

Calcola il tuo mutuo

Semplice e senza impegno
Anticipo

( % )
Mutuo

( % )

pochi semplici passi

inserisci i tuoi dati
Questionario completato
Grazie per aver richiesto un appuntamento senza impegno con un nostro Consulente del Credito e Assicurativo.

Hai inserito correttamente tutti i dati necessari e a breve riceverai una e-mail con un link da convalidare per inviare i tuoi dati.
Affiliato
Studio Pollena Sas
Via Dante Alighieri, 69 80040 Pollena Trocchia (NA)

Il nostro staff


  • Francesco Pasini
    Affiliato
Via Dante Alighieri, 69 80040 Pollena Trocchia (NA)
Zona: Pollena Trocchia
Mostra su mappa
Orari: dal lunedì al venerdì dalle ore 09:00 alle ore 13:00 e dalle ore 16:00 alle ore 20:00; sabato dalle ore 09:00 alle ore 13:00; domenica solo su appuntamento.
Affiliato
Studio Pollena Sas
Via Dante Alighieri, 69 80040 Pollena Trocchia (NA)

2026 Tecnocasa Franchising S.p.A. - P. IVA 08365160152 - Via Monte Bianco 60/A 20089 Rozzano (MI). Ogni agenzia ha un proprio titolare ed è autonoma. Privacy policy | Policy utilizzo | Cookie policy